
Energiezentrale Forsthaus Bern
Der Eventraum der Energiezentrale Forsthaus Bern verbindet Raum mit Inhalt. Direkt neben der Autobahnausfahrt liegt die Location auf 330 m² und bietet Platz für bis zu 140 Gäste – flexibel, technisch top ausgestattet und ökologisch versorgt mit 100 % Ökostrom. Profitieren Sie von modularer Raumgestaltung, Cateringoptionen und der Möglichkeit, mit einer Führung durch die Energiezentrale den Kontext deiner Veranstaltung zu vertiefen.
| Adresse | Murtenstrasse 100, 3008 Bern |
| Grösse | 330 m2 |
| Verpflegung | Wir empfehlen mehrere Caterings. Siehe Rubrik « Catering» |
| Im Preis inbegriffen | Beamer, Leinwand, Mediensteuerung, Reinigung, Mobiliar für verschiedene Szenarien |
| Umwelt | Raum ist zu 100% mit Ökostrom versorgt |
| Anreise | Wir empfehlen Ihnen eine Anreise mit dem öffentlichen Verkehr. Sie erreichen uns ab dem Hauptbahnhof Bern mit folgenden Verbindungen: - Postauto Linie 101 Richtung Güterbahnhof bis zur Haltestelle «Güterbahnhof», danach etwa 10 Minuten zu Fuss Bitte beachten Sie, dass während unserer Öffnungszeiten jeweils nur wenige Parkplätze vor Ort zur Verfügung stehen. Falls Sie einen Parkplatz benötigen, wenden Sie sich bitte direkt an Ihre Ansprechperson bei ewb. |
| Raummiete | 1/2 Tag (max. 4 Stunden) | 1 Tag (max. 9 Stunden) |
|---|---|---|
| Ganzer Raum | CHF 1'500 | CHF 2'200 |
| Personal | 1/2 Tag (max. 4 Stunden) | 1 Tag (max. 9 Stunden) |
|---|---|---|
| Vor-Ort-Betreuung ausserhalb unserer Öffnungszeiten (Mo - Fr, 9 - 16 Uhr) | CHF 75/Std. | CHF 75/Std. |
| Security ausserhalb unserer Öffnungszeiten (Mo - Fr, 9 - 16 Uhr) | CHF 75/Std. | CHF 75/Std. |
| Technik | 1/2 Tag (max. 4 Stunden) | 1 Tag (max. 9 Stunden) |
|---|---|---|
| Beschallungspauschale (Mikrophone, Mischpult usw.) | CHF 200 | CHF 300 |
| Weitere Technik | auf Anfrage | auf Anfrage |
Die Preise verstehen sich inkl. 8,1% MWST.
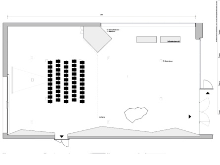
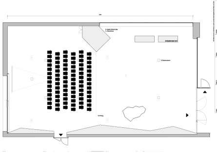
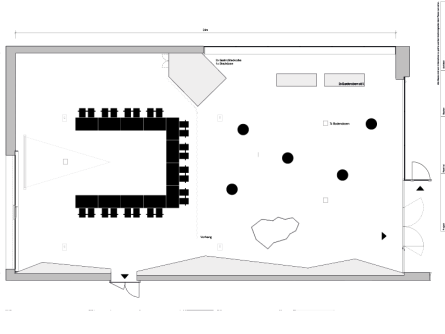
Nachfolgend finden Sie ein paar Beispiele von möglichen, räumlichen Szenarien. Selbstverständlich sind auch weitere Möblierungen (Bankett, Stehlunch usw.) möglich. Kontaktieren Sie uns, wir beraten Sie gerne.







Die Bestellung und die Verrechnung erfolgt direkt durch das beauftragte Unternehmen.
Wir empfehlen folgende Caterings:
Begert Catering
Mille Saveurs
Party-Service Sense AG
Gourmetbox
Erleben Sie, wie Berns Energie entsteht – effizient, lokal und nachhaltig. Die Energiezentrale Forsthaus ist ein Schweizer Vorzeigeprojekt: Sie produziert aus Kehricht, Holz und Erdgas Strom, Dampf und Fernwärme. So deckt sie rund einen Drittel des Berner Strombedarfs und 15 Prozent der Wärmeversorgung. Bei einer Führung sehen Sie, wie modernste Technik und erneuerbare Ressourcen zusammenspielen – und warum die Anlage zentral für den Berner Atomausstieg ist.

Wir haben am Swiss Location Award 2025 mit 8.8 Punkten das Gütesiegel «Ausgezeichnet» erhalten und gehören somit offiziell zu den schönsten Eventlocations der Schweiz!
Lassen Sie uns wissen, an welchem Datum Sie Ihren Anlass durchführen wollen. Gerne klären wir die Verfügbarkeit vom Raum unverbindlich für Sie ab.
Gerne beraten wir sie per E-Mail erlebnisenergie@ewb.ch oder Telefon 031 321 96 90.
Ihre Anfragen per E-Mail werden jeweils am Dienstag und Freitag bearbeitet. Telefonische Auskunft erhalten Sie am Dienstag und Freitag, von 09.00 - 12.00 Uhr und von 13.00 - 16.00 Uhr.

